
We’ll check local ordinances, provide a concept, outline budget and timeline. No obligation.

If you own a Florida home and need more room for guests, pool days, a home studio, looking for rental income — or simply a comfortable suite for a parent or caregiver — there’s a better way than construction chaos.
Most “backyard buildings” look like sheds, fight with HOAs, and fall apart in Florida weather.
You deserve a detached casita that looks like it always belonged on your property — finished like a real home, engineered for our codes, and installed with a plan.
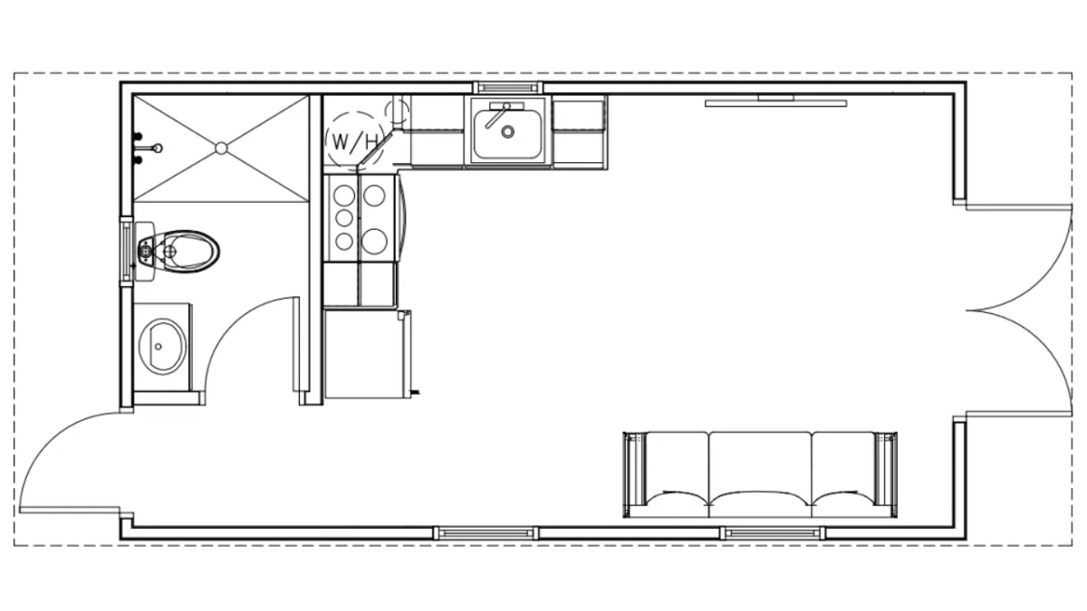
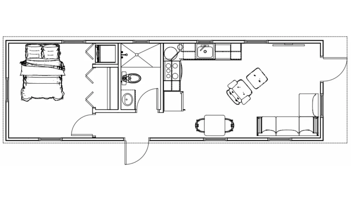
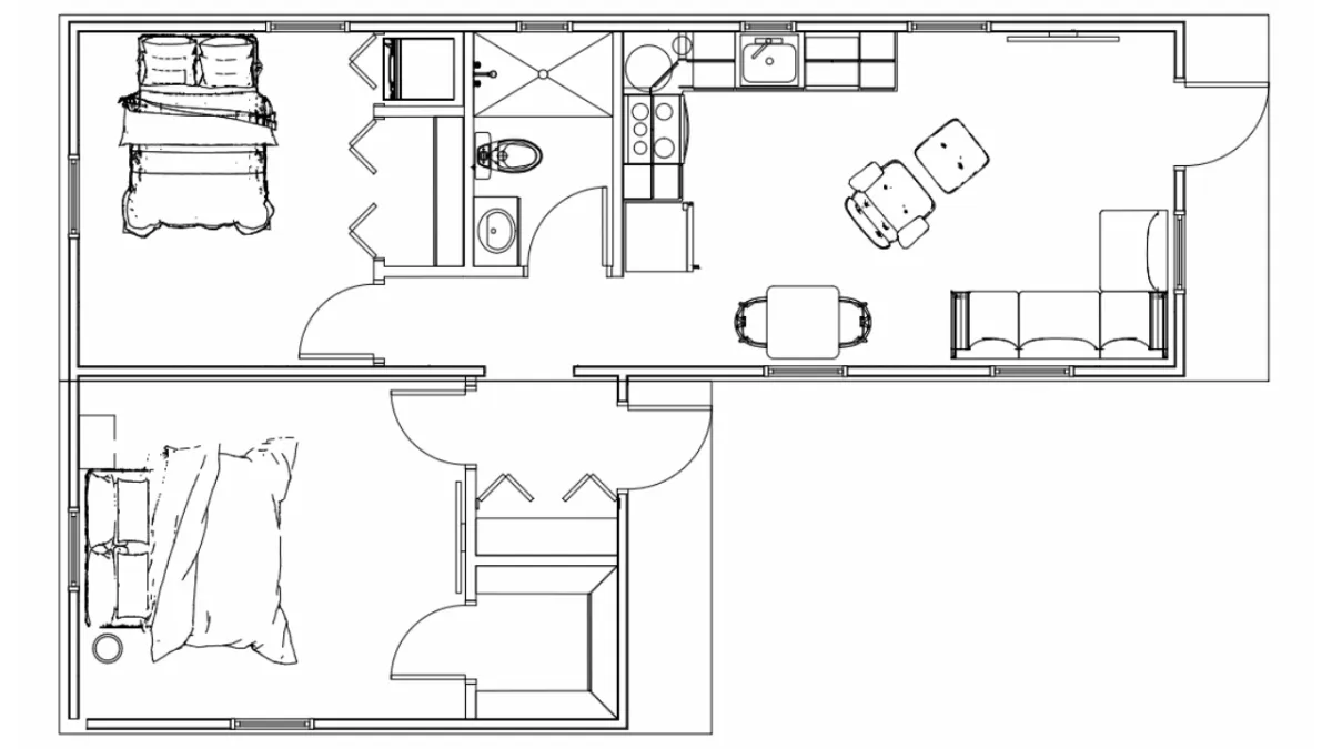
That’s why we build BRIX Casitas & Pool Houses: premium, code-clean backyard suites that deliver privacy for your guests and peace for you.
Most backyard builds turn into drawn-out remodels, endless permits, and cookie-cutter sheds that don’t stand up to Florida’s weather or design standards.
Each one is engineered for our climate, looks like it’s always belonged on your property, and is delivered with a start-to-finish plan you can trust.




I purchased a Brix Modular home for my property in the mountains of West Virginia and I couldn’t be happier with it. I hauled it through rugged roads to a secluded mountain lot and it handled everything perfectly. The build quality is outstanding the structure has a fully welded steel frame and a durable metal roof that feels virtually indestructible. Inside the craftsmanship really stands out. The walls are real drywall the kitchen feels high end with quality finishes and the detailing throughout the home shows true care in design. The bathroom is surprisingly spacious and everything from the doors to the layout feels solid and thoughtfully built. This is actually our second tiny home and the difference compared to our first is night and day. Having real drywall makes a huge impact on comfort and atmosphere. I fully recommend Brix Modular to anyone considering a small home that’s both rugged and refined. I’m already planning to purchase another in the future.






Hurricane-aware design: HVHZ/WBDR options, engineered tie-downs, impact window packages.
Factory-built precision: while we prep the site, your casita is being built—fewer delays.
Permits & inspections streamlined: our units are already state-certified and do not require inspection.
HOA-friendly elevations: architecture that complements your main home.
Quiet comfort: sound-insulated walls, impact windows & doors, efficient mini-split systems, smart ventilation.
Coastal-ready finishes: durable, low-maintenance, hardie board exteriors.









| BRIX Casita | Shed “Guest House” | DIY GC | |
|---|---|---|---|
| Code Compliance | ✔ Engineered, HVHZ-ready | ✘ Not residential-grade | ▲ Varies |
| HOA Design | ✔ Matching architecture | ✘ Often rejected | ▲ Depends |
| Timeline |
✔ Factory + site overlap
Parallel work compresses overall schedule.
|
✘ Long delays | ▲ Inconsistent |
| Sound & Comfort | ✔ Insulated + quiet HVAC | ✘ Minimal | ▲ Varies |
| Permits & Inspections | ✔ Done for you | ✘ Skipped | ▲ You manage |
| Finish Quality | ✔ Real-home materials | ✘ Basic shed | ▲ Varies |
| Warranty & Docs | ✔ Clear coverage | ✘ Sparse | ▲ Varies |



A: We verify setbacks, utilities, flood/wind zones, and HOA details during your free feasibility check.
A: Yes, our specs meet or exceed Florida’s toughest standards, including HVHZ options for Miami-Dade/Broward.
A: Factory build runs 6–16 weeks; permitting & site vary by county. We build while prepping, so you move faster.
A: We design to complement your main home and prepare the full HOA submission packet.
A: Some areas allow long-stay rentals; we’ll review local rules during feasibility so you stay compliant.
A: We provide the documentation lenders and insurers typically require and brief you on common ADU-friendly paths.
